︎
IVAN BRAVO
ABOUT
IVAN BRAVO
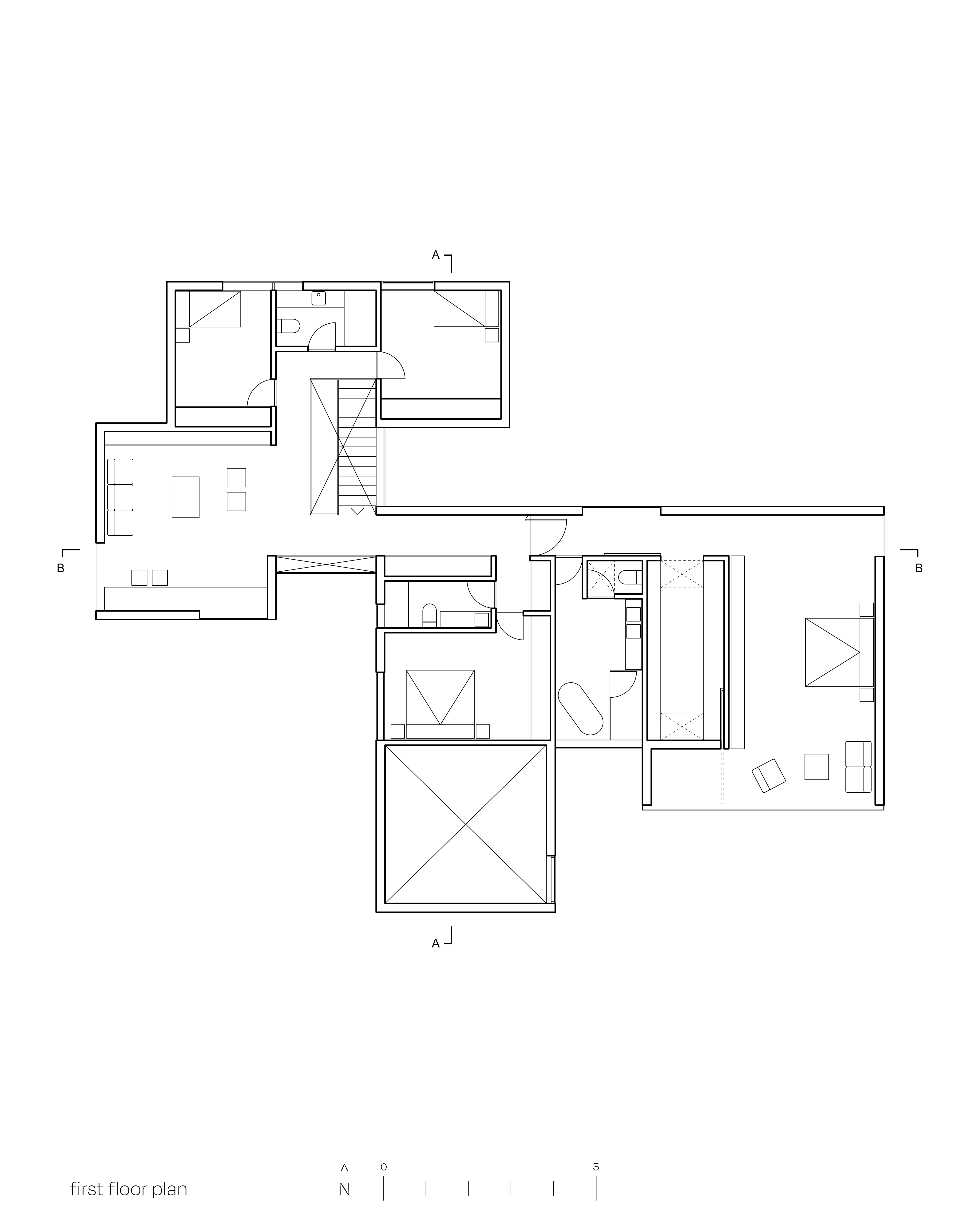
Zupe house
Year
Location
Associated
Photography
Press
2014
Santiago, CL
Bruno Giliberto
Aryeh Kornfeld
Bruno Giliberto
ArchDaily
Divisare
Summa+
︎