︎
IVAN BRAVO
ABOUT
IVAN BRAVO
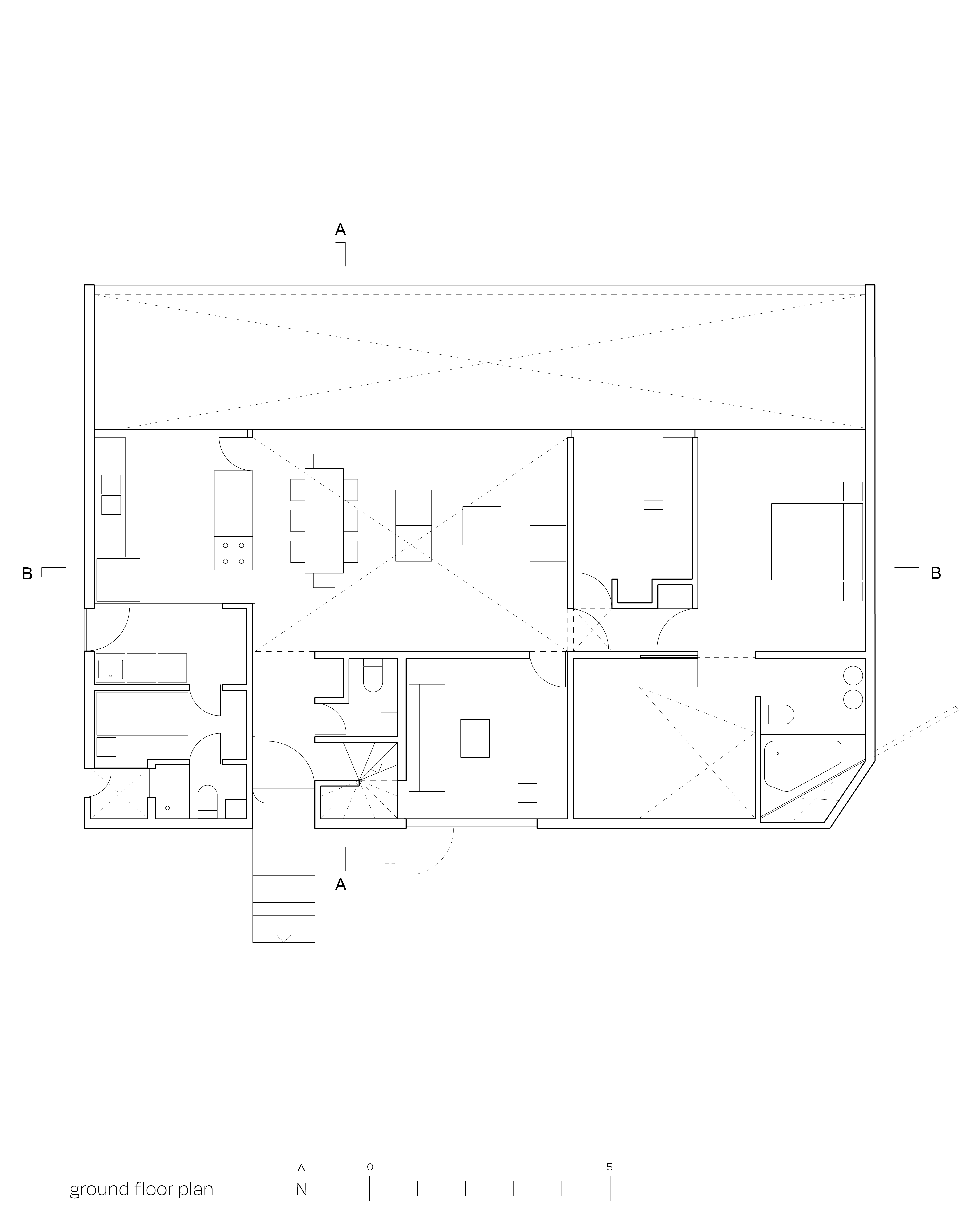
Orque house
Year
Location
Photography
Press
2015
Santiago, CL
Aryeh Kornfeld
ArchDaily
Divisare
︎